Дровяной котел 600 кВт с большой топкой в Хромтау

Котел дровяной 600 кВт с большой топкой
Дровяной котел 600 кВт с большой топкой
Чертеж дровяного котла 600 кВт с большой топкой с колосниками
Дровяной котел 600 кВт с большой топкой с колосниками чертеж
Чертеж дровяного котла 600 кВт с большой топкой ОУР
Дровяной котел 600 кВт с большой топкой ОУР чертеж
Котел дровяной 600 кВт с длинной топкой
Дровяной котел 600 кВт с длинной топкой
Котел 600 кВт на дровах с большой топкой
Котел на дровах 600 кВт с большой топкой
Котел 600 кВт на дровах с длинной топкой
Котел на дровах 600 кВт с длинной топкой
Дровяной котел 600 кВт с большой топкой водогрейный
Водогрейный дровяной котел 600 кВт с большой топкой
Дровяной котел 600 кВт с большой топкой промышленный
Промышленный дровяной котел 600 кВт с большой топкой
Дровяной котел 600 кВт с большой топкой отопительный
Отопительный дровяной котел 600 кВт с большой топкой
Топка большая
Большая топка
Дровяной котел 600 кВт с большой топкой твердотопливный
Твердотопливный дровяной котел 600 кВт с большой топкой
Топка котла 600 кВт на дровах
Топка котла на дровах 600 кВт
Котел дровяной 600 кВт с большой топкой
Чертеж дровяного котла 600 кВт с большой топкой с колосниками
Чертеж дровяного котла 600 кВт с большой топкой ОУР
Котел дровяной 600 кВт с длинной топкой
Котел 600 кВт на дровах с большой топкой
Котел 600 кВт на дровах с длинной топкой
Дровяной котел 600 кВт с большой топкой водогрейный
Дровяной котел 600 кВт с большой топкой промышленный
Дровяной котел 600 кВт с большой топкой отопительный
Топка большая
Дровяной котел 600 кВт с большой топкой твердотопливный
Топка котла 600 кВт на дровах
Цена
5 040 032 ₸
От 5 040 032 ₸ с доставкой до г.
Логотип WhatsApp Связаться
по WhatsApp
  • Котел для работы на крупных кусковых отходах деревопереработки – дровах, досках, поддонах и прочее
  • Габаритная топка длиной 2 метра
  • Эффективное сжигание топлива
  • Быстрый выход на мощность

Технические характеристики

МаркаДровяной котел 600 кВт с большой топкой
ВидВодогрейный
Тип отопительного котлаТвердотопливный
БрендHEATEXPERT
ТипКотел КВД
Вид топкиРучная, Колосники, ОУР
Максимальная тепловая мощность0.6 МВт
Максимальная тепловая мощность600 кВт
Максимальная тепловая мощность0.52 Гкал
Диапазон регулирования мощности50-100 %
ТопливоТвердое, Дрова
Низшая теплота сгорания проектного топлива2440 кКал/кг
КПД котла на ДРОВАХ, не меннее80 %
Расход ДРОВ среднечасовой за отопительный сезон157.1 кг/ч
Расход ДРОВ при максимальной нагрузке котла275 кг/ч
Расход условного топлива96 кг/ч
Минимальная температура воды на входе в котел55 °С
Максимальная температура воды на выходе из котла115 °С
Давление воды, не более0.3-0.6 (3-6) МПа (кгс/см²)
Номинальный расход теплоносителя21 м³/ч
Расход теплоносителя через котел min-max15-26 м³/ч
Гидравлическое сопротивление при номинальном расходене более 0.07 (0.7) МПа (кгс/см²)
Аэродинамическое сопротивление175 (17.5) Па (мм. вод. ст.)
Разряжение в топочной камере20-40 (2-4) Па (мм. вод. ст.)
Объем уходящих газов2650 м³/ч
Температура уходящих газов220 °С
ТягаУравновешенная
Водяной объем котла290 л
Объем топочной камеры1.3 м³
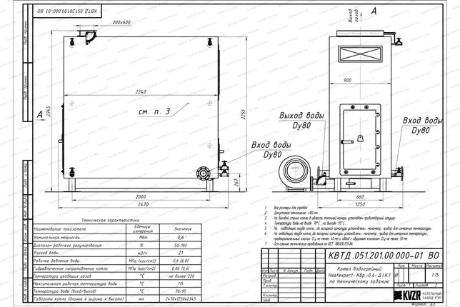
Размер топочной камеры, длина*ширина*высота2000х660х1000 мм
Активная площадь решетки горения1.32 м²
Присоединительные размеры по водяному тракту80 Ду
Присоединительные размеры газохода уходящих газов, ширина*высота / сечение600х200 / 0.12 мм/м²
Габаритные размеры котла, длина*ширина*высота2470х1250х2345 мм
Масса1500 кг
Конструкция котлаВодотрубная
Количество контуровОдноконтурный
РазмещениеНапольный
Тип камеры сгоранияОткрытый
УправлениеЭлектронное
Принцип работы твердотопливного котлаКлассический
ЭнергонезависимыйНет
Тип питанияТрехфазное
Встроенный циркуляционный насосНет
Встроенный расширительный бакНет
ЭнергоэффективностьВысокая
Отапливаемая площадьот 4700 до 6700 м²
Отапливаемый объемот 13900 до 19900 м³
Размеры корпуса котла, длина*ширина*высота мм

Котел на дровах 600 кВт с большой топкой в Хромтау

Промышленный отопительный котел на дровах с большой топкой мощностью 600 кВт нагревает воду температурой 115 °С, применяется для отопления и горячего водоснабжения маленьких и больших помещений и зданий. Используется в котельных с ручными топками.

Водогрейный котел с большой топкой 600 подходит для сжигания дров, поддонов, досок и других древесных кусковых отходов. Большой объем топочной камеры и и ее длина 2 метра позволяют работать с топливом без предварительной подготовки.

Конструкция дровяного котла 600 кВт с большой топкой

Стальной водонагревательный дровяной котел 600 кВт с длинной топкой - напольный, горизонтальный с ручной топкой. Передняя нижняя часть теплоагрегата – это чугунная колосниковая топка. В задней части трубной системы установлены конвективные пакеты. Наружная изоляция выполняется стальными листами с огнестойкими плитами. Для очистки конвективной части имеется люк. На фронтовой плите устанавливаются две дверки, расположенные одна над другой или одна большая.

Топочная часть

Топочная камера нагревательного котла на дровах 600 кВт с большой топкой выполнена из стальных водоохлаждаемых панелей для предотвращения деформации конструкции. Газоплотное исполнение топки исключает присосы холодного воздуха и выбивание горячих газов за пределы котла, повышая его КПД. В дополнительной поворотной камере, установленной на выходе из топки перед конвективным пучком происходит догорание легких и мелких топливных древесных частиц.

Колосниковая топка

Чугунные колосники собираются в решетку для поддержания слоя топлива, подачи воздуха в топку для горения и отделения зольника от топливной камеры. Отверстия в колосниках необходимы для удаления золы. Чтобы отверстия не забивались, снизу они расширяются. Дрова забрасываются на решетку через верхнюю дверцу. Верхняя загрузка способствует равномерному заполнению топочной камеры и контролю процесса горения. Под колосниками находится зольный короб с дверкой для чистки.

Конвективная часть

Конвективная поверхность производственного водотрубного дровяного котла 600 кВт с большой топкой выполнена из плотных регистров, вставленных друг в друга в шахматном порядке. Это обеспечивает значительную нагревательную площадь и высокий коэффициент передачи тепла. В связи с этим горячие дымовые газы подвергаются охлаждению до 180-200 °С.

Гидравлическая схема котла

Конструкция твердотопливного дровяного котла 600 кВт с длинной топкой для отопления предполагает минимальные требования к водоподготовке. Скорость движения воды в трубах вызывает турбулизацию водного потока, что препятствует отложению солей и образованию накипи на стенках труб. Коллекторы котла снабжены многочисленными перегородками, которые не допускают образование застойных зон, возникновение теплового напряжения в трубах и перегрев.

Купить котел на дровах 600 кВт с большой топкой

Для того, что бы купить дровяной котел 600 кВт с большой топкой в Хромтау вы можете сделать заявку по телефону +7-7172-69-59-73, либо оформить заявку онлайн. Менеджеры дадут консультацию по подбору вспомогательного оборудования для выбранных вами моделей и рассчитают стоимость доставки. Транспортирование котлоагрегата и вспомогательного оборудования до объекта осуществляется автомобильным транспортом.

Комплект поставки

Вентилятор
Вентилятор 2 с дв. 1,5/3000
1 штука
Затвор Ду 80
Затвор Ду 80
2 штуки
Колосники котлов
Колосник 520x220
8 штук
Клапан предохранительный Ду 40
Клапан Ду 40
1 штука
Клапан обратный
Клапан обратный
1 штука
Манометр МП 160
Манометр МП 160
2 штуки
Кран трехходовой ДУ 15
Кран Ду 15
2 штуки
Термометр ТТЖО
Термометр ТТЖО
2 штуки
Оправа термометра ОПТ
Оправа ОПТ
2 штуки
Вентиль Ду 15
Вентиль Ду 15
2 штуки
Вентиль Ду 20
Вентиль Ду 20
3 штуки

Дополнительно потребуется

Насос К консольный
К 65-50-160а
Цена 428 350 тг.
Насос К консольный
К 50-32-125
Цена 313 025 тг.
Насос TD
Насос TD40-36G2 (5.5 кВт)
Цена 1 447 164 тг.
Насос CHL
Насос CHL2-40 (0.55 кВт)
Цена 330 159 тг.
Дымосос ДН 3.5
Цена 368 381 тг.
Золоуловитель ЗУ 0.6
Цена 303 140 тг.
Дымосос ДН 6.3
Цена 642 525 тг.

Похожая продукция

Сертификаты товара

Сертификат на водогрейные котлы на твердом и жидком топливе
Сертификат на водогрейные котлы на твердом топливе

Собственное производство

Котельный завод производит
  • Паровые котлы от 300 кг до 2.5 тонны пара в час
  • Промышленные водогрейные котлы от 150 КВт до 4 МВт на всех видах топлива
  • Механические топки ТШПМ, шурующая планка и ТЛПХ, ленточное полотно прямого хода
  • Циклоны для очистки воздуха и дымовых газов для производств и промышленных отраслей
  • Транспортеры и системы топливоподачи и шлакоудаления
Подробнее о производстве
Собственное производство
Смотреть видео
с производства