Пеллетный котел 0.5 МВт в Хромтау

Котел пеллетный 0.5 МВт
Пеллетный котел 0.5 МВт
Котел на пеллетах 0.5 МВт чертеж
Чертеж котла на пеллетах 0.5 МВт
Котел 0.5 МВт на пеллетах
Котел на пеллетах 0.5 МВт
Водогрейный котел 0.5 МВт на пеллетах
Водогрейный котел на пеллетах 0.5 МВт
Котел на пеллетах 0.5 МВт автоматический
Автоматический котел на пеллетах 0.5 МВт
Изготовление автоматического пеллетного котла 0.5 МВт
Изготовление автоматических пеллетных котлов 0.5 МВт
Производство автоматического пеллетного котла 0.5 МВт
Производство автоматических пеллетных котлов 0.5 МВт
Котел пеллетный 0.5 МВт
Котел на пеллетах 0.5 МВт чертеж
Котел 0.5 МВт на пеллетах
Водогрейный котел 0.5 МВт на пеллетах
Котел на пеллетах 0.5 МВт автоматический
Изготовление автоматического пеллетного котла 0.5 МВт
Производство автоматического пеллетного котла 0.5 МВт
Цена
7 822 800 ₸
От 7 822 800 ₸ с доставкой до г.
  • Автоматизированная работа котла
  • Работа на всех видах пеллет
  • Автоматизированная регулируемая подача топлива и требуемых параметров теплоносителя
  • Встроенная система безопасности от воспламенения топлива

Технические характеристики пеллетного котла 0.5 МВт

МаркаКотел КВа ДП (пеллетты)
ВидВодогрейный
Тип отопительного котлаТвердотопливный
БрендHEATEXPERT
ТипКотел КВа Д
Вид топкиРетортная, Автоматическая
Максимальная тепловая мощность0.5 МВт
Максимальная тепловая мощность500 кВт
Максимальная тепловая мощность0.43 Гкал
Диапазон регулирования мощности30-100 %
Диапазон регулирования мощности150-500 кВт
ТопливоТвердое, Пеллеты
Низшая теплота сгорания проектного топлива4900 кКал/кг
Влажность топлива20 %
Фракционный состав топлива6-10 мм
КПД котла на ПЕЛЛЕТАХ, не менее80 %
Расход ПЕЛЛЕТ среднечасовой за отопительный сезон65 кг/ч
Расход ПЕЛЛЕТ при максимальной нагрузке котла113 кг/ч
Расход условного топлива79 кг/ч
Минимальная температура воды на входе в котел55 °С
Максимальная температура воды на выходе из котла115 °С
Срок автономной работы при минимальной нагрузке до1 суток
Срок автономной работы в среднем за отопительный сезон8 часов
Срок автономной работы при максимальной нагрузке котла5 часов
Давление воды, не более0.15-0.3 (1.5-3) МПа (кгс/см²)
Номинальный расход теплоносителя18 м³/ч
Расход теплоносителя через котел min-max11-19 м³/ч
Гидравлическое сопротивление при номинальном расходене более 0.07 (0.7) МПа (кгс/см²)
Аэродинамическое сопротивление130 (1.3) Па (мм. вод. ст.)
Разряжение в топочной камере20-40 (2-4) Па (мм. вод. ст.)
Объем уходящих газов2750 м³/ч
Температура уходящих газов220 °С
ТягаУравновешенная
Водяной объем котла520 л
Объем топочной камеры0.58 м³
Объем бункера0.80 м³
Объем штатного бункера (насыпная плотность 650 кг/м³)520 кг
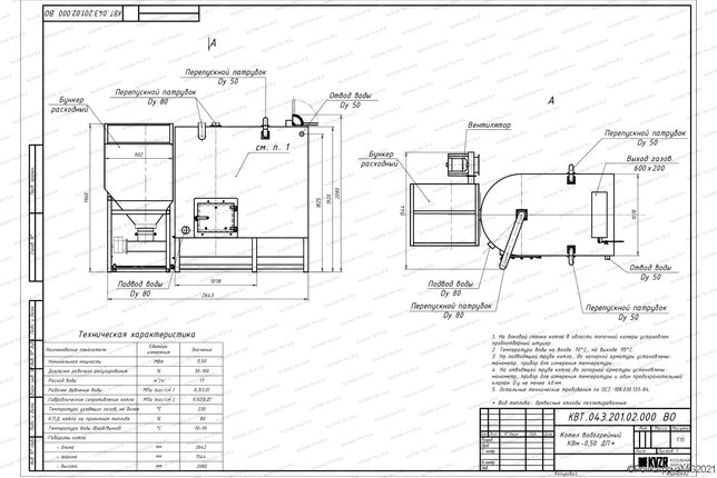
Размер топочной камеры, длина*ширина*высотаД 900х1410 мм
Присоединительные размеры по водяному тракту65 Ду
Присоединительные размеры газохода уходящих газов, ширина*высота / сечение600х200 / 0.12 мм/м²
Габаритные размеры блока, длина*ширина*высота1850х1400х1700 мм
Габаритные размеры установки, длина*ширина*высота2900х1400х2400
Масса2750 кг
Конструкция котлаВодотрубная
Количество контуровОдноконтурный
РазмещениеНапольный
Тип камеры сгоранияОткрытый
УправлениеЭлектронное
Принцип работы твердотопливного котлаКлассический
ЭнергонезависимыйНет
Тип питанияТрехфазное
Встроенный циркуляционный насосНет
Встроенный расширительный бакНет
Отапливаемая площадьот 3900 до 5500 м²
Отапливаемый объемот 11500 до 16500 м³
ЭнергоэффективностьВысокая

Котел на пеллетах 0.5 МВт с автоматической подачей в Хромтау

Промышленный твердотопливный котел на пеллетах 0.5 МВт предназначен для отопления и горячего водоснабжения жилых и производственных зданий. Обслуживание и работа пеллетного котла не требует больших усилий, все рабочие процессы котлоагрегата автоматизированы. Котел работает на всех видах пеллет, в том числе низкокачественных и агропеллетах. Агрегат считается экологически безопасным, т.к при сжигании топлива не выделяются вредные и токсичные вещества.

Пеллетный теплогенератор нагревает воду до 95 – 115 градусов с давлением теплоносителя 0,1 – 0,3 МПа.

Пеллетный котел 0.5 МВт устройство

Твердотопливный пеллетный котел 0,5 МВт водотрубный, напольный состоит из котельного блока с топкой и зольником, конвективного пакета и расходного бункера. Топка оснащается ретортной горелкой, которая устанавливается в центре топочной камеры и крепится к нижней части бункера.

Расположение горелки в центре обеспечивает равномерное нагревание стенок топки, не подвергая их перегреву. При помощи шнека топливо из бункера поступает на чашу реторты, где происходит его горение. Для розжига и обслуживания в топочной части установлена дверка.

Зольный короб находится под ретортой. Сброс шлака и золы производится автоматически. С зольника, при помощи шнека, шлак и зола удаляются в емкость-накопитель. В связи с низкой зольностью топлива чистка котла производится редко.

Бункер для пеллетного котла крепиться к котельному блоку. Герметичный бункер исключает обратную тягу и защищает топливо от возгорания.

Конвективные пакеты друг напротив друга в шахматном порядке располагается над топкой. Такое расположение обеспечивает необходимую площадь нагрева, охлаждение дымовых газов на выходе до 200-180 °С, компактность котла и снижает вероятность забивания конвективной части.

Для предотвращения в трубной системе отложения солей и накипи организована необходимая скорость теплоносителя для создания турбулизации. В коллекторах отопительного пеллетного котла 0 5 МВт находятся перегородки, которые распределяют поток воды так, чтобы исключить образование застоя, возникновение теплового напряжения и локального перегрева.

Принцип работы котла 0.5 МВт на пеллетах

При помощи автоматики полностью контролируется работа водотрубного котла 0.5 МВт на пилетах:

  • производится дозированная подача топлива для поддержания комфортной температуры в помещении;
  • происходит контроль горения;
  • осуществляется подача воздуха, в количестве, необходимом на горение.

Топливо загружается в оперативный бункер, откуда при помощи шнека поступает на чашу реторты. На корпусе шнека расположен термодатчик для контроля температуры. При повышении температуры выше допустимой все топливо сбрасывается в топку, предотвращая возгорание.

Воздух на горение подается в центр и под колосники ретортной горелки, тем самым предотвращая решетку от перегрева.

Удаление шлака в зольник производится свежими порциями топлива, поступающими на реторту. Шнеком из зольного ящика зола и шлак поступают в емкость-накопитель.

Комплект поставки

Цена на напольные пеллетные котлы 0,5 МВт для отопления включает базовую комплектацию. В состав базовой комплектации входит: вентилятор поддува, ретортная горелка со шнековым питателем, бункер, затворы, предохранительные клапаны, вентили, манометры, термометры, трехходовые краны.

Дополнительная комплектация

  • автоматика – обеспечивает управление и безопасность котла;
  • циркуляционный насос - обеспечивает циркуляцию воды в котлоагрегате;
  • подпиточный насос – позволяет пополнять объем теплоносителя в контуре;
  • дымосос – создает разряжение в котле и исключает попадание дыма в помещение;
  • золоуловитель – применяется для улавливания золы из дымовых газов.

Купить пеллетный котел 0.5 МВт

Для того, что бы купить котел 0.5 МВт на пеллетах в Хромтау вы можете сделать заявку по телефону +7-7172-69-59-73, либо оформить заявку онлайн. Менеджеры дадут консультацию по подбору вспомогательного оборудования для выбранных вами моделей и рассчитают стоимость доставки. Транспортирование котлоагрегата и вспомогательного оборудования до объекта осуществляется автомобильным транспортом.

Комплект поставки пеллетного котла 0.5 МВт

Вентилятор
Вентилятор 2 с дв. 1,5/3000
1 штука
Пеллетная ретортная горелка
Горелка ретортная пеллетная
1 штука
Бункер котла на пеллетах автоматического
Бункер автоматического котла на пеллетах
1 штука
Контейнер для шлака
Контейнер шлака
1 штука
Затвор ДУ 65
Затвор Ду 65
2 штуки
Клапан предохранительный Ду 40
Клапан Ду 40
1 штука
Клапан обратный
Клапан обратный
1 штука
Манометр МП 160
Манометр МП 160
2 штуки
Кран трехходовой ДУ 15
Кран Ду 15
2 штуки
Термометр ТТЖО
Термометр ТТЖО
2 штуки
Оправа термометра ОПТ
Оправа ОПТ
2 штуки
Вентиль Ду 15
Вентиль Ду 15
2 штуки
Вентиль Ду 20
Вентиль Ду 20
2 штуки

Вспомогательное оборудование для работы пеллетного котла 0.5 МВт

Насос К консольный
К 65-50-125
Цена 336 444 тг.
Насос К консольный
К 50-32-125
Цена 283 656 тг.
Насос TD
Насос TD32-33G2 (3 кВт)
Цена 788 640 тг.
Насос TD
Насос TD50-28G2 (4 кВт)
Цена 945 732 тг.
Насос CHL
Насос CHL2-40 (0.55 кВт)
Цена 368 880 тг.

Аналоги пеллетного котла 0.5 МВт

Котел дровяной 0.5 МВт с большой топкой
Дровяной котел 0.5 МВт с большой топкой
Вид топкиРучная, Колосники, ОУР, Большая
Максимальная тепловая мощность, МВт0.5
ТопливоТвердое, Дрова
Отапливаемая площадь, м²от 3900 до 5500
Цена 4 172 160 тг.
Котел 0.5 МВт дрова уголь
Котел 0.5 МВт уголь дрова
Вид топкиРучная, Колосники, ОУР
Максимальная тепловая мощность, МВт0.5
ТопливоТвердое, Уголь, Дрова
Отапливаемая площадь, м²от 3900 до 5500
Цена 3 758 760 тг.
На древесных отходах котел 0.5 МВт
Котел на древесных отходах 0.5 МВт
Вид топкиРучная, Подовая
Максимальная тепловая мощность, МВт0.5
ТопливоТвердое, Дрова, Древесные отходы естественной влажности
Отапливаемая площадь, м²от 3900 до 5500
Цена 4 172 160 тг.
0.5 МВт котел на дровах
Котел на дровах 0.5 МВт
Вид топкиРучная, Колосники, ОУР
Максимальная тепловая мощность, МВт0.5
ТопливоТвердое, Дрова
Отапливаемая площадь, м²от 3900 до 5500
Цена 3 790 560 тг.
Котел пеллетный 0.4 МВт
Пеллетный котел 0.4 МВт
Вид топкиРетортная, Автоматическая
Максимальная тепловая мощность, МВт0.4
ТопливоТвердое, Пеллеты
Отапливаемая площадь, м²от 3000 до 4300
Цена 7 612 920 тг.
Котел пеллетный 0.6 МВт
Пеллетный котел 0.6 МВт
Вид топкиРетортная, Автоматическая
Максимальная тепловая мощность, МВт0.6
ТопливоТвердое, Пеллеты
Отапливаемая площадь, м²от 4700 до 6700
Цена 8 636 880 тг.

Сертификат и качество пеллетного котла 0.5 МВт

Сертификат на водогрейные котлы на твердом и жидком топливе
Сертификат на водогрейные котлы на твердом топливе

Собственное производство

Котельный завод производит
  • Паровые котлы от 300 кг до 2.5 тонны пара в час
  • Промышленные водогрейные котлы от 150 КВт до 4 МВт на всех видах топлива
  • Механические топки ТШПМ, шурующая планка и ТЛПХ, ленточное полотно прямого хода
  • Циклоны для очистки воздуха и дымовых газов для производств и промышленных отраслей
  • Транспортеры и системы топливоподачи и шлакоудаления
Подробнее о производстве
Собственное производство
Смотреть видео
с производства